Presented by Robert J. Iio Personal Real Estate Corporation — Team 110 RE/MAX Real Estate (Kamloops).

(250) 851-3110
info@team110.com
Team 110 | Your Kamloops REALTOR®

9921 Watt Street Mission, British Columbia V2V 0B6

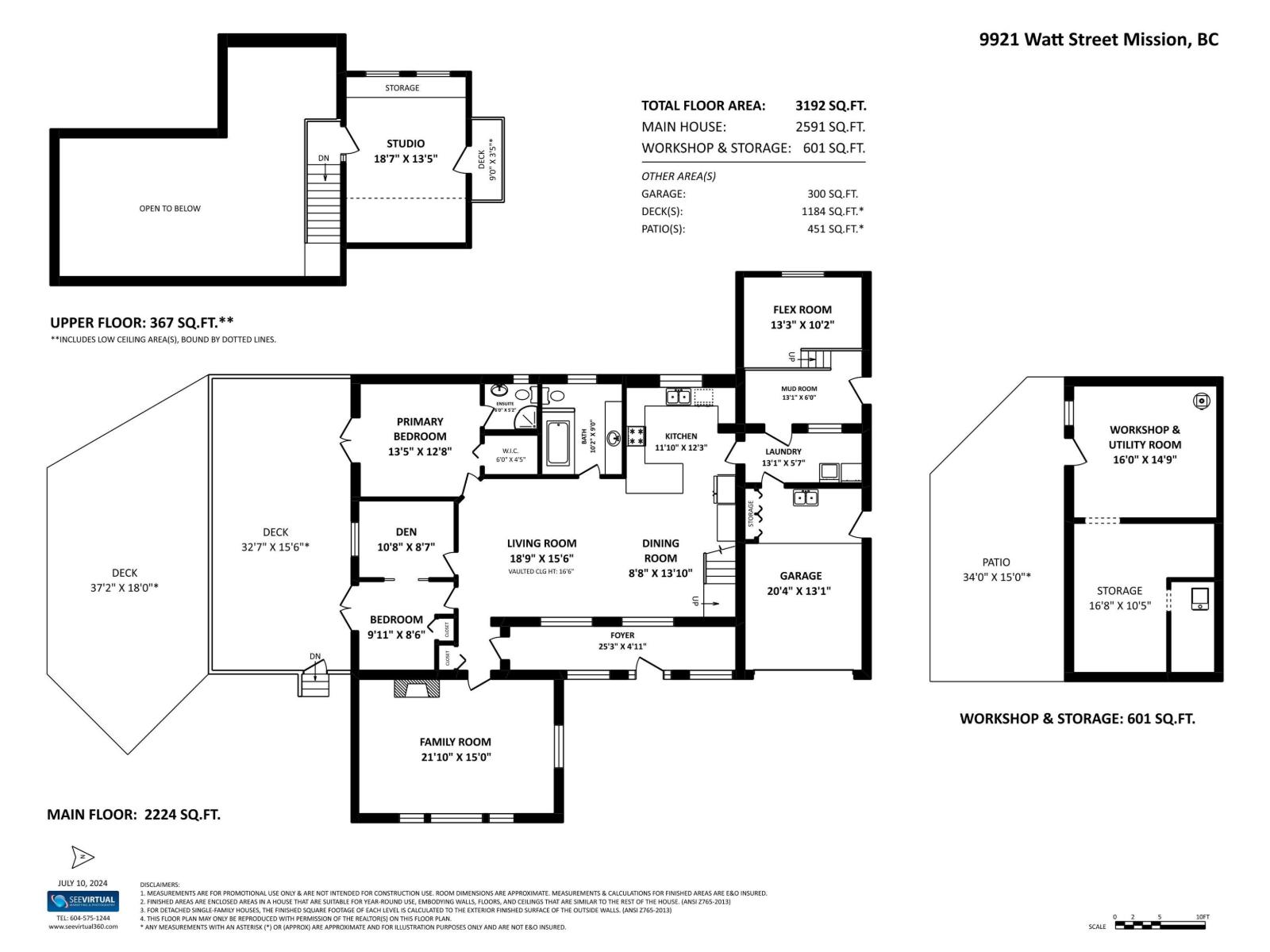
3 Bedroom 2 Bathroom 3,192 ft2
2 Level Fireplace Baseboard Heaters, Forced Air Acreage

$1,563,000

Tucked away at the end of a quiet street, this custom, spruce log home sits on 2.3 acres. Surrounded by nature, this one-of-a-kind property offers the ultimate escape, yet only 10 minutes from Downtown Mission! Whether you love to entertain or simply unwind in peace, this home has it all: sprawling decks and patios, lush gardens, an in-ground pool, your own orchard, and even a charming chicken coop. Explore the creek, play in the open yard, or host unforgettable gatherings in this truly magical setting. Step inside and be captivated by the warmth and character throughout. The rock fireplace anchors the cozy family room, a perfect spot to curl up with a book or gather with friends. The open living and dining spaces flow seamlessly into a beautifully renovated kitchen, while a Hemlock-railed staircase leads to a versatile loft space - ideal for a bedroom, rec room, or creative studio. Add in a flex room and you've got endless possibilities for work, play, or guests. This is more than a home, its a lifestyle. (id:61048)

Property Details

MLS® Number R3091695
Property Type Single Family
Parking Space Total 6

Building

Bathroom Total 2
Bedrooms Total 3
Age 41 Years
Architectural Style 2 Level
Basement Development Partially Finished
Basement Features Separate Entrance
Basement Type Partial (partially Finished)
Construction Style Attachment Detached
Fireplace Present Yes
Fireplace Total 1
Heating Type Baseboard Heaters, Forced Air
Size Interior 3,192 Ft2
Type House
Utility Water Drilled Well

Parking

Carport
Garage

Land

Acreage Yes
Size Irregular 100853
Size Total 100853 Sqft
Size Total Text 100853 Sqft

Utilities

Electricity Available
Natural Gas Available

https://www.realtor.ca/real-estate/29379311/9921-watt-street-mission

Contact Us

Contact us for more information

Generating Captcha

Sandra Wyant
Personal Real Estate Corporation, WyantCraig Real Estate Group

(604) 813-9447
www.wyantcraig.com/
www.facebook.com/WyantCraigRealEstateGroup

Exp Realty
#1500 - 701 West Georgia Street
Vancouver, British Columbia V7Y 1G5

(833) 817-6506
(833) 817-6506
exprealty.ca/

Josh Craig
Personal Real Estate Corporation, WyantCraig Real Estate Group

(778) 866-2195
www.wyantcraig.com/
www.facebook.com/WyantCraigRealEstateGroup

Exp Realty
#1500 - 701 West Georgia Street
Vancouver, British Columbia V7Y 1G5

(833) 817-6506
(833) 817-6506
exprealty.ca/

Your Favourites

 

No Favourites Found