Presented by Robert J. Iio Personal Real Estate Corporation — Team 110 RE/MAX Real Estate (Kamloops).

(250) 851-3110
info@team110.com
Team 110 | Your Kamloops REALTOR®

507 Wren Place Kelowna, British Columbia V1W 4K8

4 Bedroom 4 Bathroom 2,393 sqft
Fireplace Central Air Conditioning Forced Air Underground Sprinkler

$1,089,000

Curb appeal, an excellent location and a massive flat lot are just some of the highlights of 507 Wren Place! This 4 bed, 3 full bath home has a massive .27 acre level lot that is totally usable. Amazing curb appeal with a nice retaining wall, stamped concrete sidewalks and even a stamped concrete covered front porch. The oversized driveway has space for an RV and there is a spacious double car garage. Main level has hardwood floors, a living room w/gas fireplace and an open concept kitchen which provides a nice view of the back yard. The kitchen is well designed for entertaining with S/S appliances and an island. The family and dining rooms have direct access to the huge deck with a bright sun exposure. Den/Office space is on the main but could be a bedroom as it has a closet. Upstairs is the master suite with full ensuite and a walk in closet. Another full bathroom and bedroom complete the upper floor. Downstairs is a large space. It has a seperate entrance, another bedroom plus a den/storage room. Forced air heating with central A/C for those hot Kelowna summers. Located only steps to Chute Lake Elementary! The well maintained yard is fenced and has underground irrigation. Kettle Valley is an awesome place to live, with stores, schools and transit all within walking distance. Check out the virtual tour in the media tab! (id:61048)

Property Details

MLS® Number 10383673
Property Type Single Family
Neigbourhood Upper Mission
Parking Space Total 4

Building

Bathroom Total 4
Bedrooms Total 4
Constructed Date 2004
Construction Style Attachment Detached
Cooling Type Central Air Conditioning
Exterior Finish Vinyl Siding
Fireplace Fuel Gas
Fireplace Present Yes
Fireplace Total 1
Fireplace Type Unknown
Heating Type Forced Air
Roof Material Asphalt Shingle
Roof Style Unknown
Stories Total 3
Size Interior 2,393 Sqft
Type House
Utility Water Municipal Water

Parking

Attached Garage 2

Land

Acreage No
Landscape Features Underground Sprinkler
Sewer Municipal Sewage System
Size Irregular 0.28
Size Total 0.28 Ac|under 1 Acre
Size Total Text 0.28 Ac|under 1 Acre

Rooms

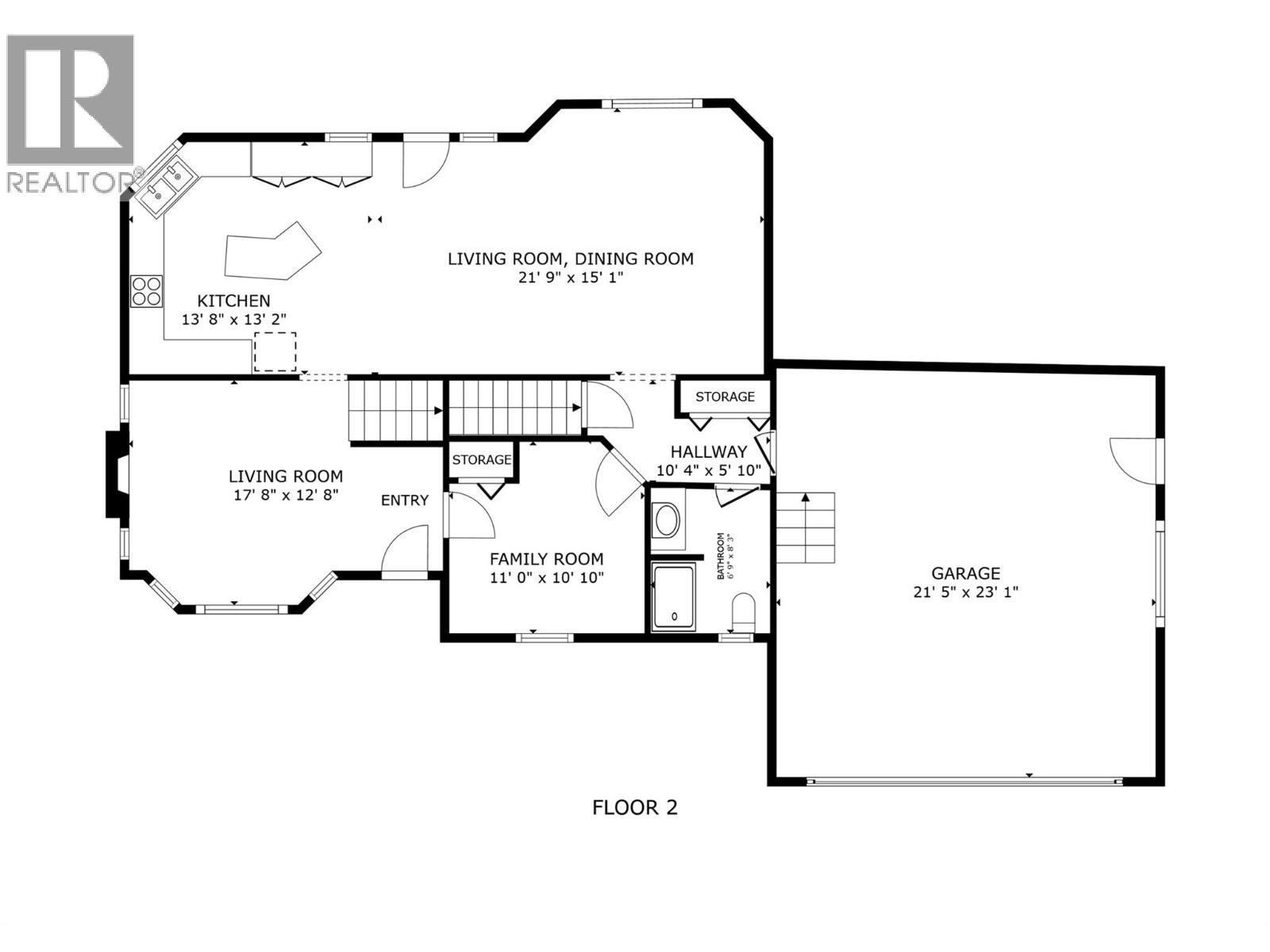
Level Type Dimensions
Second Level Full Bathroom 7'7'' x 9'2''
Second Level Bedroom 11'10'' x 10'5''
Second Level Full Ensuite Bathroom 6'1'' x 7'8''
Second Level Primary Bedroom 13'5'' x 13'2''
Lower Level Full Bathroom 7'9'' x 6'4''
Lower Level Bedroom 12'5'' x 12'2''
Lower Level Laundry Room 9'1'' x 8'11''
Lower Level Storage 8'5'' x 6'4''
Lower Level Family Room 25'5'' x 10'2''
Main Level Full Bathroom 6'9'' x 8'3''
Main Level Bedroom 11'0'' x 10'10''
Main Level Dining Room 21'9'' x 15'1''
Main Level Living Room 17'8'' x 12'8''
Main Level Kitchen 13'8'' x 13'2''

https://www.realtor.ca/real-estate/29623318/507-wren-place-kelowna-upper-mission

Contact Us

Contact us for more information

Generating Captcha

Sascha Heinrich

(250) 878-5138

Century 21 Assurance Realty Ltd
251 Harvey Ave
Kelowna, British Columbia V1Y 6C2

(250) 869-0101
assurancerealty.c21.ca/

Sukhjit Parmar
Personal Real Estate Corporation

(250) 869-0101
sukh-parmar.c21.ca/
www.facebook.com/pages/category/Real-Estate/Sukh-Parmar-Real-Estate-7554

Century 21 Assurance Realty Ltd
251 Harvey Ave
Kelowna, British Columbia V1Y 6C2

(250) 869-0101
assurancerealty.c21.ca/

Your Favourites

 

No Favourites Found