Presented by Robert J. Iio Personal Real Estate Corporation — Team 110 RE/MAX Real Estate (Kamloops).

(250) 851-3110
info@team110.com
Team 110 | Your Kamloops REALTOR®

315 63 W 6th Avenue Vancouver, British Columbia V5Y 1K2

$52,720 Yearly

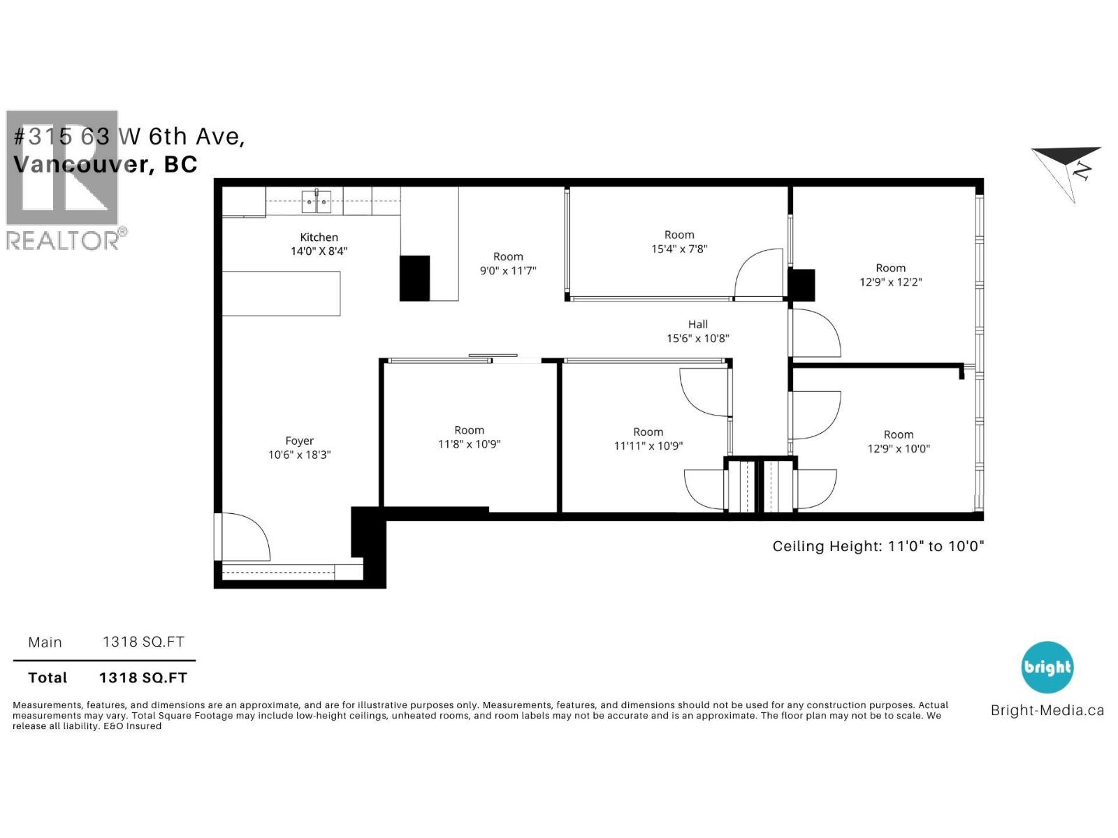
This bright, modern unit features four private offices, a boardroom, and a kitchen within an efficient layout ideal for professional, creative, or small business use. Includes rooftop deck access and two secure underground parking spaces included in the lease offer. Excellent exposure with convenient access to transit, Olympic Village, and nearby amenities. A rare opportunity in one of Vancouver's most sought-after commercial areas. (id:61048)

Property Details

MLS® Number C8073720
Property Type Office
Neigbourhood West Point Grey

Building

Constructed Date 2021

Land

Acreage No
Zoning Description I-1

https://www.realtor.ca/real-estate/29088696/315-63-w-6th-avenue-vancouver

Contact Us

Contact us for more information

Generating Captcha

Imran Ali
Personal Real Estate Corporation, The Ali Group

(604) 616-5553
www.thealigroup.ca/

Exp Realty
#1500 - 701 West Georgia Street
Vancouver, British Columbia V7Y 1G5

(833) 817-6506
(833) 817-6506
exprealty.ca/

Your Favourites

 

No Favourites Found