Presented by Robert J. Iio Personal Real Estate Corporation — Team 110 RE/MAX Real Estate (Kamloops).

(250) 851-3110
info@team110.com
Team 110 | Your Kamloops REALTOR®

2952 Clapperton Avenue Merritt, British Columbia V1K 1G2

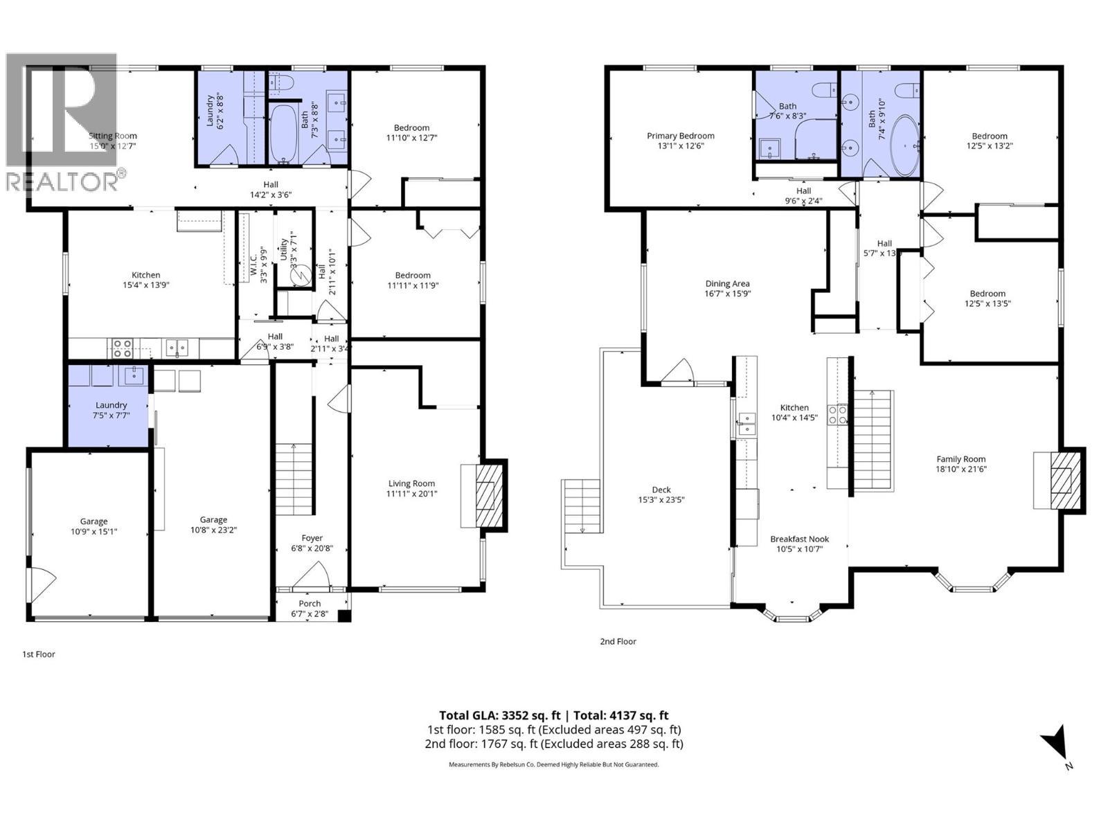
5 Bedroom 3 Bathroom 3,380 ft2
Fireplace Baseboard Heaters, Hot Water, See Remarks Landscaped, Level

$599,000

Exceptional opportunity for multi-generational living or investment, this substantially updated 3,380 sq ft home offers space, privacy, & a fully self-contained 2 BR suite. With 5 bedrooms and expansive living areas, the layout allows families to live together, yet separately, making it ideal for in-laws/tenants downstairs while the main family enjoys the upper level & Fam rm down. The main home features a bright open kitchen and dining area, both w/ access onto the deck, large living & family rooms, a spacious primary bedroom with 3-piece ensuite, and a 4-piece main bath. The suite has 2 bedrooms, a 5-piece bathroom & its own laundry room w/ sink. Substantially renovated 2021 through 2025, upgrades include a new kitchens, flooring, bathroom improvements, wiring /some plumbing upgrades & a new laundry room. The home is move-in ready & includes all appliances for both the main home and suite, plus water softener. Cozy wood-burning fireplaces are featured up and down, plus a wood stove insert in the basement family room. Outside, enjoy a fully landscaped/fenced private backyard, new sundeck, irrigated raised garden beds, insulated/wired 9x12 storage shed, and a charming fish pond w/ new liner & pump in the front yard. A large double garage provides excellent parking and workshop space. Efficient on-demand hot water heating supplies both heat and hot water in one system. A rare and versatile property offering comfort, independence, and long-term investment value. (id:61048)

Property Details

MLS® Number 10371522
Property Type Single Family
Neigbourhood Merritt
Amenities Near By Park, Schools
Community Features Family Oriented
Features Level Lot
Parking Space Total 6
Storage Type Storage Shed

Building

Bathroom Total 3
Bedrooms Total 5
Appliances Oven - Built-in
Constructed Date 1986
Construction Style Attachment Detached
Exterior Finish Brick, Vinyl Siding
Fireplace Fuel Wood
Fireplace Present Yes
Fireplace Total 2
Fireplace Type Conventional
Flooring Type Laminate, Vinyl
Heating Type Baseboard Heaters, Hot Water, See Remarks
Roof Material Asphalt Shingle
Roof Style Unknown
Stories Total 2
Size Interior 3,380 Ft2
Type House
Utility Water Municipal Water

Parking

Attached Garage 2
R V

Land

Access Type Easy Access
Acreage No
Land Amenities Park, Schools
Landscape Features Landscaped, Level
Sewer Municipal Sewage System
Size Irregular 0.16
Size Total 0.16 Ac|under 1 Acre
Size Total Text 0.16 Ac|under 1 Acre

Rooms

Level Type Dimensions
Lower Level Utility Room 7'6'' x 7'
Lower Level Laundry Room 9' x 6'
Lower Level Laundry Room 10'4'' x 6'
Lower Level 5pc Bathroom 9' x 7'9''
Lower Level Foyer 6'8'' x 6'6''
Lower Level Bedroom 12'4'' x 12'
Lower Level Bedroom 13'2'' x 12'
Lower Level Living Room 13'6'' x 12'4''
Lower Level Kitchen 13'10'' x 13'4''
Lower Level Family Room 19'6'' x 12'
Main Level Bedroom 12'6'' x 11'10''
Main Level Bedroom 13'4'' x 11'10''
Main Level 3pc Ensuite Bath 6'10'' x 6'
Main Level 4pc Bathroom 9' x 7'8''
Main Level Primary Bedroom 13'10'' x 12'6''
Main Level Living Room 20' x 16'
Main Level Dining Room 17'4'' x 13'
Main Level Dining Nook 10' x 10'
Main Level Kitchen 13' x 10'3''

Utilities

Electricity Available
Natural Gas Available
Telephone Available
Sewer Available
Water Available

https://www.realtor.ca/real-estate/29214969/2952-clapperton-avenue-merritt-merritt

Contact Us

Contact us for more information

Generating Captcha

Penny Turko

(250) 378-7913
pennyturko.exprealty.com/
www.facebook.com/PennyTurkoRealtor/
www.linkedin.com/in/pennyturko/
www.instagram.com/pennyturko/

Exp Realty (Kamloops)
1000 Clubhouse Dr (Lower)
Kamloops, British Columbia V2H 1T9

(833) 817-6506
www.exprealty.ca/

Your Favourites

 

No Favourites Found