Presented by Robert J. Iio Personal Real Estate Corporation — Team 110 RE/MAX Real Estate (Kamloops).

(250) 851-3110
info@team110.com
Team 110 | Your Kamloops REALTOR®

19294 78 Avenue Surrey, British Columbia V4N 6C7

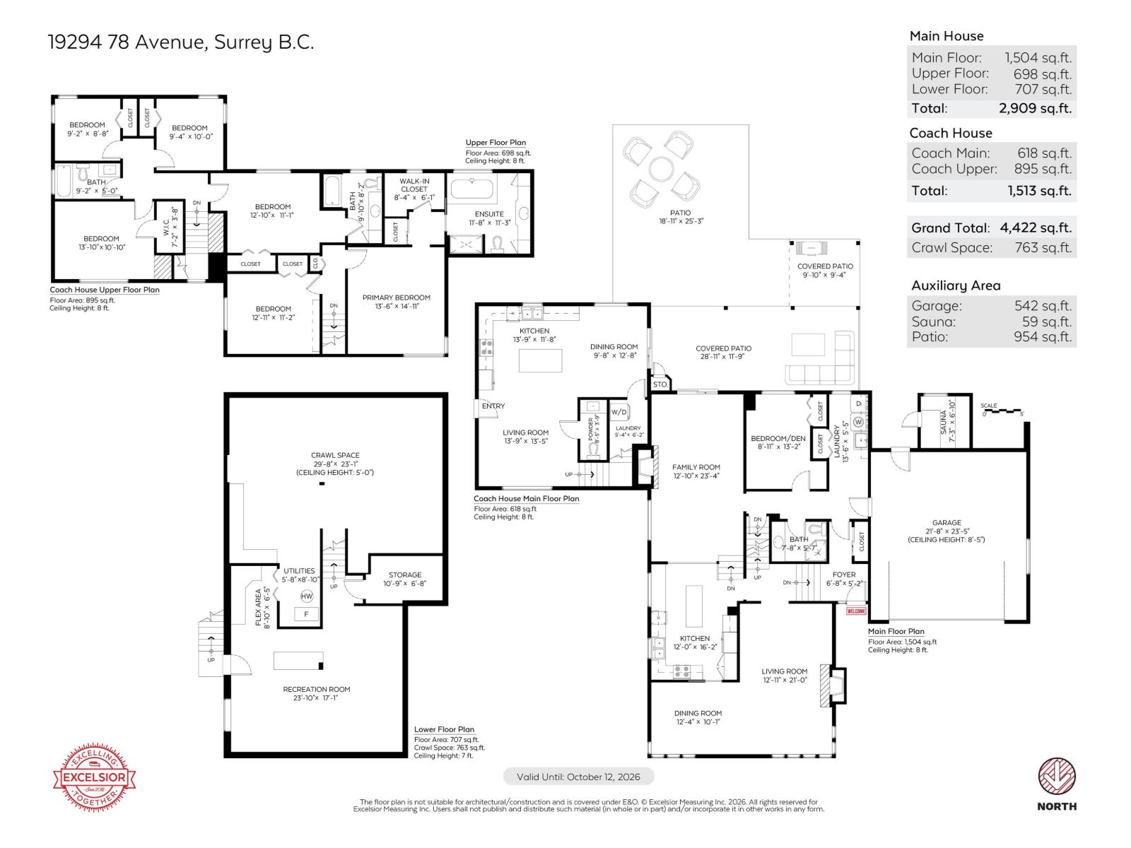
7 Bedroom 5 Bathroom 4,422 ft2
3 Level, Carriage Fireplace Forced Air Acreage Garden Area

$3,499,000

Prime 1.19 acre property on a quiet street in a sought after location. This beautifully updated legal duplex style home offers exceptional flexibility as a strong investment or ideal multifamily residence. With 7 bedrooms, 5 bathrooms and over 4.400 sq ft, the layout provides spacious living on all levels. Multiple kitchens, generous living area and private spaces make it perfect for extended family. Ample parking, double garage and fantastic outbuildings add to the value. A rare opportunity offering space, income potential and long term upside in a prime setting. (id:61048)

Property Details

MLS® Number R3091716
Property Type Single Family
Parking Space Total 12

Building

Bathroom Total 5
Bedrooms Total 7
Age 46 Years
Amenities Storage - Locker
Appliances Washer, Dryer, Refrigerator, Stove, Dishwasher, Storage Shed
Architectural Style 3 Level, Carriage
Basement Development Finished
Basement Features Unknown
Basement Type Crawl Space (finished)
Construction Style Attachment Detached
Fireplace Present Yes
Fireplace Total 2
Fixture Drapes/window Coverings
Heating Fuel Electric
Heating Type Forced Air
Size Interior 4,422 Ft2
Type House
Utility Water Municipal Water

Parking

Garage

Land

Acreage Yes
Landscape Features Garden Area
Sewer Septic Tank
Size Irregular 51836
Size Total 51836 Sqft
Size Total Text 51836 Sqft

Utilities

Electricity Available
Natural Gas Available
Water Available

https://www.realtor.ca/real-estate/29380277/19294-78-avenue-surrey

Contact Us

Contact us for more information

Generating Captcha

Amy Brattebo
Personal Real Estate Corporation

(604) 613-1684
www.amybrattebo.ca/

Royal LePage Little Oak Realty
120 - 9220 Glover Road, P.o.box 863
Fort Langley, British Columbia V1M 2S2

(604) 888-2475
(604) 888-2465
littleoakrealty.com/

Your Favourites

 

No Favourites Found