Presented by Robert J. Iio Personal Real Estate Corporation — Team 110 RE/MAX Real Estate (Kamloops).

(250) 851-3110
info@team110.com
Team 110 | Your Kamloops REALTOR®

1601 210 Salter Street New Westminster, British Columbia V3M 0J9

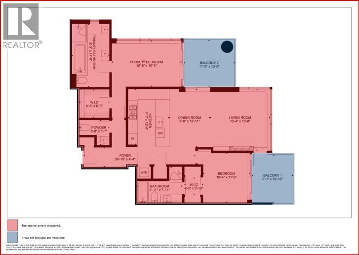
2 Bedroom 3 Bathroom 1,270 ft2
Air Conditioned Forced Air, Heat Pump Waterfront

$903,000

Maintenance,

$859.01 Monthly

THE Peninsula WATERFRONT Condo. 1270 sf 2 bdrm 3 bath corner END suite with exceptional layout, magnificent unobstructed expansive views, sunsets, city skyline, mountains. Luxurious Gaggenau panel covered appliances, quartz counters, gas stove. Storage galore. Ensuite floor heating, dual sinks, walk in shower & soaker tub, linen cabinet, window in primary bath. Geothermal heating, cooling, 1 gas outlet on TWO LARGE balconies and BIG CORNER floor to ceiling windows. You will love coming home to this resort style, social, friendly, secure bldg with waterfall entry, elegant lobby, concierge, gym, hot tub, steam rm GUEST SUITE and Theatre rm. Steps to the park, boardwalk, Q2Q Ferry 5 minutes to skytrain, movies, shops, restaurants, services. 2 Pets allowed. NO smoking bldg. 1 LOCKER 1 PARKING Open House MAY 10 SUN 1:30 PM - 3 PM (id:61048)

Open House

This property has open houses!

May
10
Sunday
Starts at:

1:30 pm

Ends at:

3:00 pm

REDUCED PRICE

Property Details

MLS® Number R3091011
Property Type Single Family
Amenities Near By Golf Course, Marina, Recreation, Shopping
Community Features Pets Allowed, Pets Allowed With Restrictions, Rentals Allowed With Restrictions
Features Central Location, Elevator, Wheelchair Access
Parking Space Total 1
View Type View
Water Front Type Waterfront

Building

Bathroom Total 3
Bedrooms Total 2
Amenities Exercise Centre, Guest Suite, Laundry - In Suite
Appliances All, Hot Tub, Intercom, Oven - Built-in
Constructed Date 2017
Cooling Type Air Conditioned
Fire Protection Smoke Detectors, Sprinkler System-fire
Fixture Drapes/window Coverings
Heating Fuel Geo Thermal
Heating Type Forced Air, Heat Pump
Size Interior 1,270 Ft2
Type Apartment

Parking

Underground
Visitor Parking

Land

Acreage No
Land Amenities Golf Course, Marina, Recreation, Shopping

https://www.realtor.ca/real-estate/29373437/1601-210-salter-street-new-westminster

Contact Us

Contact us for more information

Generating Captcha

Anna Smith

(604) 505-1647
www.youtube.com/embed/vonrT8jR_8M
www.annasmithrealty.com/

RE/MAX Crest Realty
#1 - 5050 Kingsway
Burnaby, British Columbia V5H 4C2

(604) 433-2211
(604) 433-5274
www.remaxcrest.ca

Your Favourites

 

No Favourites Found