Presented by Robert J. Iio Personal Real Estate Corporation — Team 110 RE/MAX Real Estate (Kamloops).

(250) 851-3110
info@team110.com
Team 110 | Your Kamloops REALTOR®

1531 Olive Pond Place Kelowna, British Columbia V1V 2C6

3 Bedroom 3 Bathroom 2,848 sqft
Central Air Conditioning Forced Air

$1,649,000

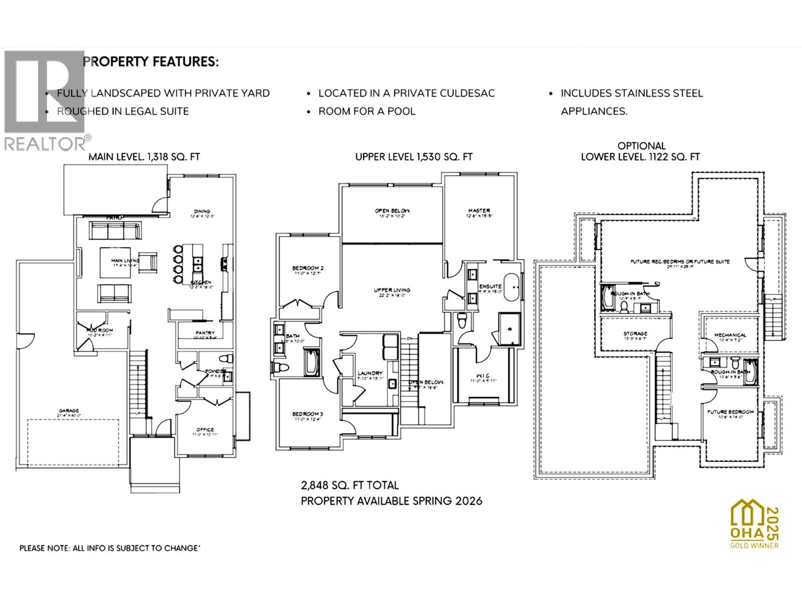
Welcome to this brand new 3,970 SqFt home in Hidden Hills, designed and constructed by AuthenTech Homes. A blend of timeless style and modern function within Kelowna’s premier Wilden community. The exterior makes an impressive first impression, the main level is complete with soaring high ceilings, a dedicated home office, and a beautiful kitchen featuring a walk in pantry and stainless steel appliances. The upper floor hosts three spacious bedrooms, a secondary upper living area, and a convenient laundry room. The primary suite is a retreat, complete with a walk-in closet and a luxurious ensuite. For added flexibility, the 1,122 square foot lower level comes fully roughed in for a legal suite or extra recreation space. Situated in a private cul-de-sac, this property features a triple car garage with tandem parking and a fully landscaped yard with ample room for a pool. Enjoy life steps away from serene trails, parks, and top rated schools. GST is applicable. (id:61048)

Property Details

MLS® Number 10378117
Property Type Single Family
Neigbourhood Wilden
Community Features Pets Allowed, Pets Allowed With Restrictions, Rentals Allowed
Parking Space Total 5

Building

Bathroom Total 3
Bedrooms Total 3
Basement Type Full
Constructed Date 2026
Construction Style Attachment Detached
Cooling Type Central Air Conditioning
Half Bath Total 1
Heating Type Forced Air
Roof Material Asphalt Shingle
Roof Style Unknown
Stories Total 2
Size Interior 2,848 Sqft
Type House
Utility Water Municipal Water

Parking

Attached Garage 3

Land

Acreage No
Sewer Municipal Sewage System
Size Irregular 0.16
Size Total 0.16 Ac|under 1 Acre
Size Total Text 0.16 Ac|under 1 Acre

Rooms

Level Type Dimensions
Second Level Family Room 22'2'' x 16'
Second Level Bedroom 11' x 12'4''
Second Level Bedroom 11' x 12'
Second Level Full Bathroom Measurements not available
Second Level Full Ensuite Bathroom Measurements not available
Second Level Primary Bedroom 12'6'' x 15'5''
Main Level Den 11' x 10'11''
Main Level Partial Bathroom Measurements not available
Main Level Dining Room 12'3'' x 12'6''
Main Level Living Room 17'4'' x 18'4''
Main Level Kitchen 12'5'' x 16'

https://www.realtor.ca/real-estate/29464913/1531-olive-pond-place-kelowna-wilden

Contact Us

Contact us for more information

Generating Captcha

Justin O'connor
Personal Real Estate Corporation

(250) 826-9961
justinoconnor.com/
www.instagram.com/justinoconnorgroup/

Sotheby's International Realty Canada
104 - 3477 Lakeshore Rd
Kelowna, British Columbia V1W 3S9

(250) 469-9547
(250) 380-3939
www.sothebysrealty.ca/

Lynnea Matusza

(250) 859-6404

Sotheby's International Realty Canada
104 - 3477 Lakeshore Rd
Kelowna, British Columbia V1W 3S9

(250) 469-9547
(250) 380-3939
www.sothebysrealty.ca/

Your Favourites

 

No Favourites Found