Presented by Robert J. Iio Personal Real Estate Corporation — Team 110 RE/MAX Real Estate (Kamloops).

(250) 851-3110
info@team110.com
Team 110 | Your Kamloops REALTOR®

1242 Copper Road Oliver, British Columbia V0H 1T0

3 Bedroom 2 Bathroom 1,524 ft2
Bungalow Heat Pump Forced Air, Heat Pump

$599,900

Maintenance,

$99 Monthly

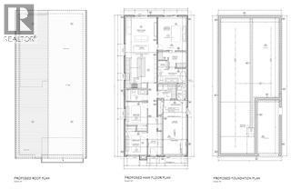
Perched on Oliver’s coveted Fairview hillside—just minutes from the tees at Fairview Mountain Golf Club—this brand-new, 1,500+?sq?ft rancher delivers the Okanagan lifestyle in a single-level package. The 3-bed/2-bath layout lives large with 9-ft vaulted ceilings, energy-efficient construction, and durable luxury vinyl plank running wall to wall. A bright open kitchen anchors the great room with quartz surfaces, a generous island, and a gas range ready for chef’s nights in. Both the living area and the primary suite spill onto a stamped-concrete patio framed by mountain views, a gas BBQ hook-up, and a fully fenced, low-maintenance yard—perfect for golden-hour entertaining. The private winged primary retreat adds a walk-through closet and spa-inspired ensuite, while two secondary bedrooms handle guests or a home office with ease. Practical perks include a heated, extra-deep single garage with roughed-in EV charger, additional driveway parking, and the peace of mind of new-home warranty. From here you’re five minutes to downtown shopping, dining, schools, recreation, and many of BC’s top wineries; Fairview Mountain Golf and Area 27 Raceway Park are practically neighbours. Low bare-land strata helps keeps the community tidy, and GST applies. Measurements approx.—buyer to verify if important. Reach out for the full feature sheet and completion timeline. (id:61048)

Property Details

MLS® Number 10379270
Property Type Single Family
Neigbourhood Oliver
Community Name Copper Road
Amenities Near By Schools
Community Features Pets Allowed
Parking Space Total 1
View Type Mountain View

Building

Bathroom Total 2
Bedrooms Total 3
Appliances Range, Refrigerator, Dishwasher, Dryer, Washer
Architectural Style Bungalow
Basement Type Crawl Space
Constructed Date 2026
Construction Style Attachment Detached
Cooling Type Heat Pump
Exterior Finish Other
Heating Type Forced Air, Heat Pump
Roof Material Metal
Roof Style Unknown
Stories Total 1
Size Interior 1,524 Ft2
Type House
Utility Water Municipal Water

Parking

Attached Garage 1

Land

Acreage No
Land Amenities Schools
Sewer Municipal Sewage System
Size Irregular 0.09
Size Total 0.09 Ac|under 1 Acre
Size Total Text 0.09 Ac|under 1 Acre

Rooms

Level Type Dimensions
Main Level Bedroom 10' x 10'
Main Level Dining Room 14'5'' x 7'0''
Main Level Primary Bedroom 14'7'' x 13'1''
Main Level Living Room 14'5'' x 10'9''
Main Level Kitchen 14'5'' x 13'0''
Main Level 5pc Ensuite Bath Measurements not available
Main Level Bedroom 10'0'' x 10'0''
Main Level 3pc Bathroom Measurements not available

https://www.realtor.ca/real-estate/29470834/1242-copper-road-oliver-oliver

Contact Us

Contact us for more information

Generating Captcha

Kevin Primeau

(250) 408-9093

Exp Realty
645 Main Street
Penticton, British Columbia V2A 5C9

(833) 817-6506
(866) 263-9200
www.exprealty.ca/

Your Favourites

 

No Favourites Found