Presented by Robert J. Iio Personal Real Estate Corporation — Team 110 RE/MAX Real Estate (Kamloops).

(250) 851-3110
info@team110.com
Team 110 | Your Kamloops REALTOR®

1225 Copperhead Drive Kamloops, British Columbia V2E 0A1

6 Bedroom 4 Bathroom 3,024 ft2
Fireplace Central Air Conditioning Forced Air, See Remarks Landscaped, Underground Sprinkler

$998,500

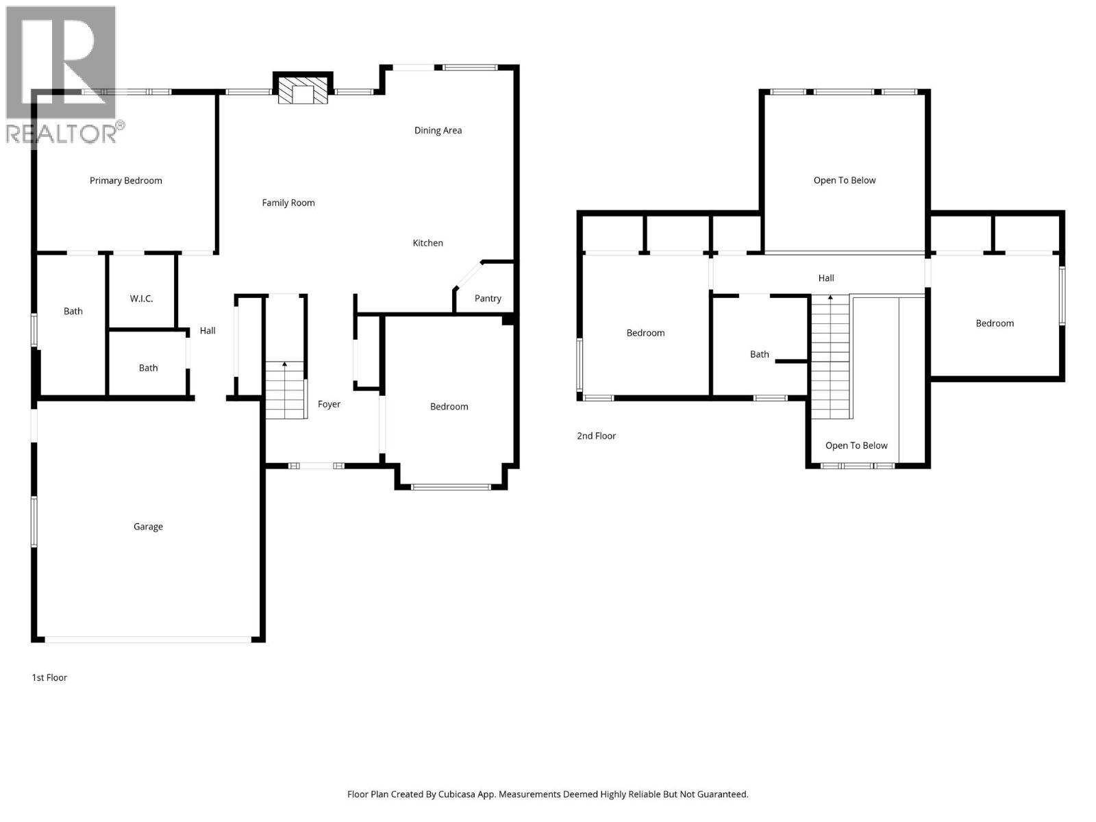
Welcome to 1225 Copperhead Drive. This 6-bedroom two storey home with a 2-bedroom in-law suite is in a highly sought after location in Dufferin backing onto Kenna Cartwright Park. Enter into the main floor of this home & you’ll immediately notice the impressive 17ft ceilings in the living room + large windows which bring in tons of natural light. The living room opens up to the kitchen & dining area which flows together effortlessly & is great for entertaining. The main floor has 2 bedrooms including a large primary bedroom with views of the park, 3pc ensuite bathroom, & walk in closet + there is an additional bedroom/office by the front door. The main floor also has a laundry room in the 2pc guest bathroom. The upper-level features 2 more bedrooms & a 4pc bathroom connected by a breezeway with great views of the outdoors. Outside the low-maintenance yard is a nature retreat at your own house. There is a large deck, great views of the park behind, & a gate that instantly connects you to the largest municipal park in BC. True privacy with no neighbours behind your house. Downstairs is a large 2-bedroom inlaw suite with separate entrance, full kitchen, 4pc bathroom, separate laundry, & large living room. Recent updates include new carpet on stairs (2026), hot water tank, main floor appliances, & basement suite reno(2024). Double garage, central vac, & an amazing location close to Dufferin Elementary, Costco, Aberdeen Mall, & all amenities. Book your showing today! (id:61048)

Property Details

MLS® Number 10377905
Property Type Single Family
Neigbourhood Dufferin/Southgate
Amenities Near By Park, Recreation, Shopping
Community Features Pets Allowed
Features Cul-de-sac
Parking Space Total 2
Road Type Cul De Sac
View Type Mountain View, View (panoramic)

Building

Bathroom Total 4
Bedrooms Total 6
Appliances Range, Refrigerator, Dishwasher, Microwave, Washer & Dryer
Basement Type Full
Constructed Date 2006
Construction Style Attachment Detached
Cooling Type Central Air Conditioning
Exterior Finish Vinyl Siding
Fireplace Fuel Gas
Fireplace Present Yes
Fireplace Total 1
Fireplace Type Unknown
Flooring Type Mixed Flooring
Half Bath Total 1
Heating Type Forced Air, See Remarks
Roof Material Asphalt Shingle
Roof Style Unknown
Stories Total 3
Size Interior 3,024 Ft2
Type House
Utility Water Municipal Water

Parking

Additional Parking
Attached Garage 2

Land

Acreage No
Fence Type Fence
Land Amenities Park, Recreation, Shopping
Landscape Features Landscaped, Underground Sprinkler
Sewer Municipal Sewage System
Size Irregular 0.11
Size Total 0.11 Ac|under 1 Acre
Size Total Text 0.11 Ac|under 1 Acre

Rooms

Level Type Dimensions
Second Level Bedroom 10'9'' x 11'6''
Second Level 4pc Bathroom Measurements not available
Second Level Bedroom 9'11'' x 11'
Basement Living Room 13'2'' x 16'
Basement Kitchen 12'3'' x 9'11''
Basement Bedroom 12'3'' x 13'5''
Basement Bedroom 9'10'' x 12'2''
Basement 4pc Bathroom Measurements not available
Basement Laundry Room 5'6'' x 14'
Main Level Dining Room 9'4'' x 9'11''
Main Level Primary Bedroom 15'1'' x 12'11''
Main Level Living Room 13'10'' x 16'5''
Main Level Bedroom 10'2'' x 11'5''
Main Level Kitchen 11'11'' x 12'6''
Main Level 3pc Ensuite Bath Measurements not available
Main Level 2pc Bathroom Measurements not available

https://www.realtor.ca/real-estate/29423911/1225-copperhead-drive-kamloops-dufferinsouthgate

Contact Us

Contact us for more information

Generating Captcha

Kevin Bamsey
Personal Real Estate Corporation

(250) 377-3279
www.ykahomes.com/

Century 21 Assurance Realty Ltd
7 - 1315 Summit Dr.
Kamloops, British Columbia V2C 5R9

(250) 869-0101
assurancerealty.c21.ca/

Becky Bamsey

(250) 819-2517

Century 21 Assurance Realty Ltd
7 - 1315 Summit Dr.
Kamloops, British Columbia V2C 5R9

(250) 869-0101
assurancerealty.c21.ca/

Your Favourites

 

No Favourites Found